The Heritage
The Heritage by Single Builders honours timeless rural living with modern elegance. Designed for large blocks and families who appreciate space and serenity, each four-bedroom home in this series blends expansive open-plan layouts, country charm, and practical zones for everyday living.
Like all quality Single Builders homes, The Heritage has the best all-inclusive home options at an affordable price.
Option 1
Option 2
Option 3
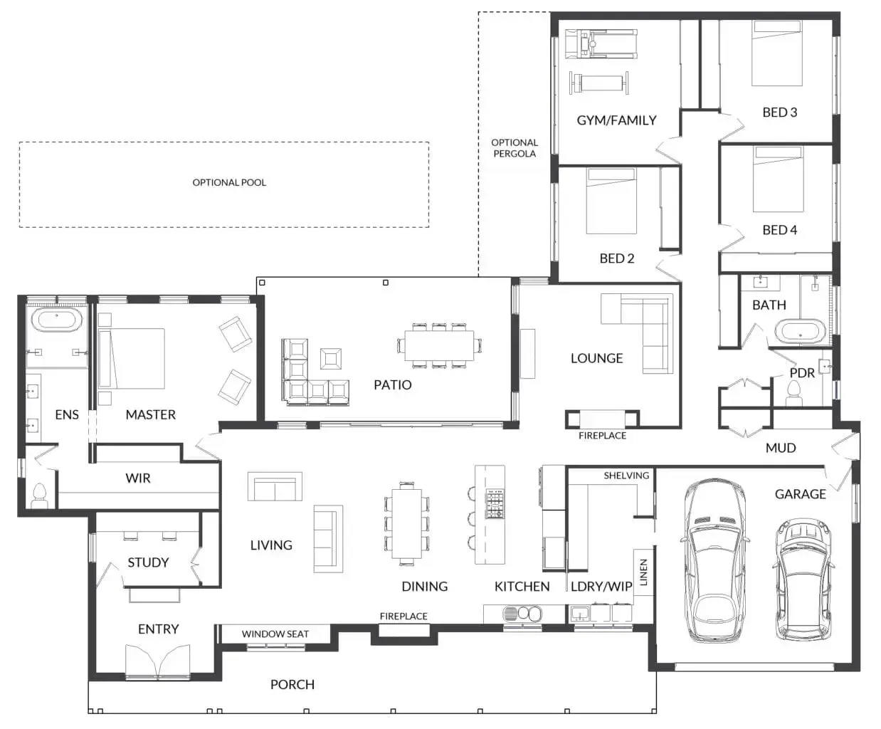
The Heritage HSB3 delivers spacious four-bedroom living with classic rural flow. Featuring a central open-plan hub, walk-in pantry, alfresco access, and a secluded master retreat, this design provides a perfect balance of shared space and privacy.
The Heritage HSB3

The Heritage HSB3
Total Area
Width
Length
Classic Country Living, Modern Touch
Rural Flow for Family Life
Designed for Wide Open Spaces
Did you know?
Single Builders can custom design The Heritage HSB3 as well as all our plans to suit your needs?
Get a FREE Quote for The Heritage HSB3
Contact Us
We will get back to you as soon as possible.
Please try again later.
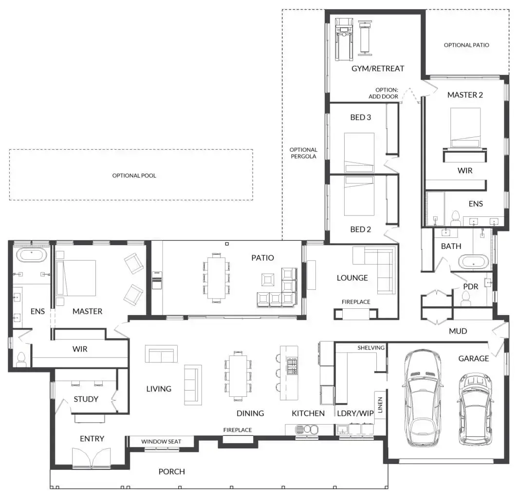
The Heritage HSB4
With even more space for family living, The Heritage HSB4 offers an additional lounge and larger living areas. The open-plan kitchen includes a walk-in pantry, and zoned bedrooms ensure comfort for every household member.

The Heritage HSB4
Total Area
Width
Length
Classic Country Living, Modern Touch
Rural Flow for Family Life
Designed for Wide Open Spaces
Did you know?
Single Builders can custom design The Heritage HSB4 as well as all our plans to suit your needs?
Get a FREE Quote for The Heritage HSB4
Contact Us
We will get back to you as soon as possible.
Please try again later.
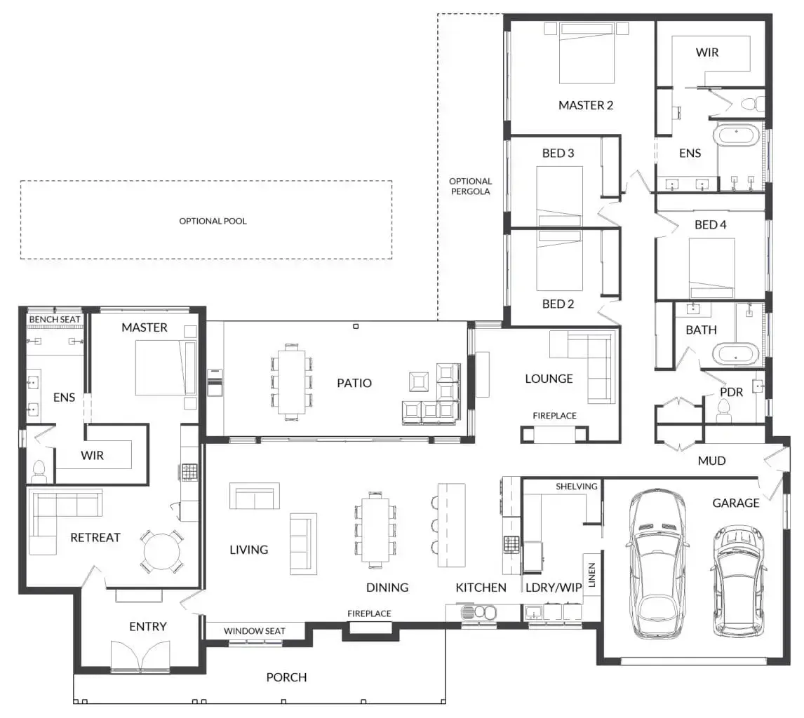
The Heritage HSB5
The most generous of the range, The Heritage HSB5 includes a dedicated media room, grand master suite, and seamless indoor-outdoor flow. It’s the ideal rural family home for those who want extra space without compromising warmth or style.

The Heritage HSB5
Total Area
Width
Length
Classic Country Living, Modern Touch
Rural Flow for Family Life
Designed for Wide Open Spaces
Did you know?
Single Builders can custom design The Heritage HSB5 as well as all our plans to suit your needs?
Get a FREE Quote for The Heritage HSB5
Contact Us
We will get back to you as soon as possible.
Please try again later.




















