The Moonbi
The Moonbi by Single Builders is a contemporary home series designed to blend practicality with modern elegance. With carefully considered layouts that maximise space, The Moonbi offers versatile options, from efficient three-bedroom designs to spacious four and five-bedroom configurations. Each home features an open-plan living area, a private master suite with a walk-in robe and ensuite, and a secure double garage. Whether you're a growing family or looking for a stylish downsizer, The Moonbi delivers the perfect balance of functionality and comfort.
Like all quality Single Builders homes, The Moonbi has the best all-inclusive home options at an affordable price.
Option 1
Option 2
Option 3
The Moonbi BSI1 by Single Builders is a smartly designed three-bedroom home that optimises space without compromising on style. Featuring a master suite with a walk-in robe and ensuite, an open-plan kitchen and living area, and a secure double garage, this home is ideal for young families, professionals, or downsizers looking for an efficient and elegant layout.
The Moonbi BSI 1

The Moonbi BSI 1
Total Area
Width
Length
Clever Use of Space
Seamless Living & Entertaining
Designed for Your Lifestyle
Did you know?
Single Builders can custom design The Moonbi BSI 1 as well as all our plans to suit your needs?
Get a FREE Quote for The Moonbi BSI 1
Contact Us
We will get back to you as soon as possible.
Please try again later.
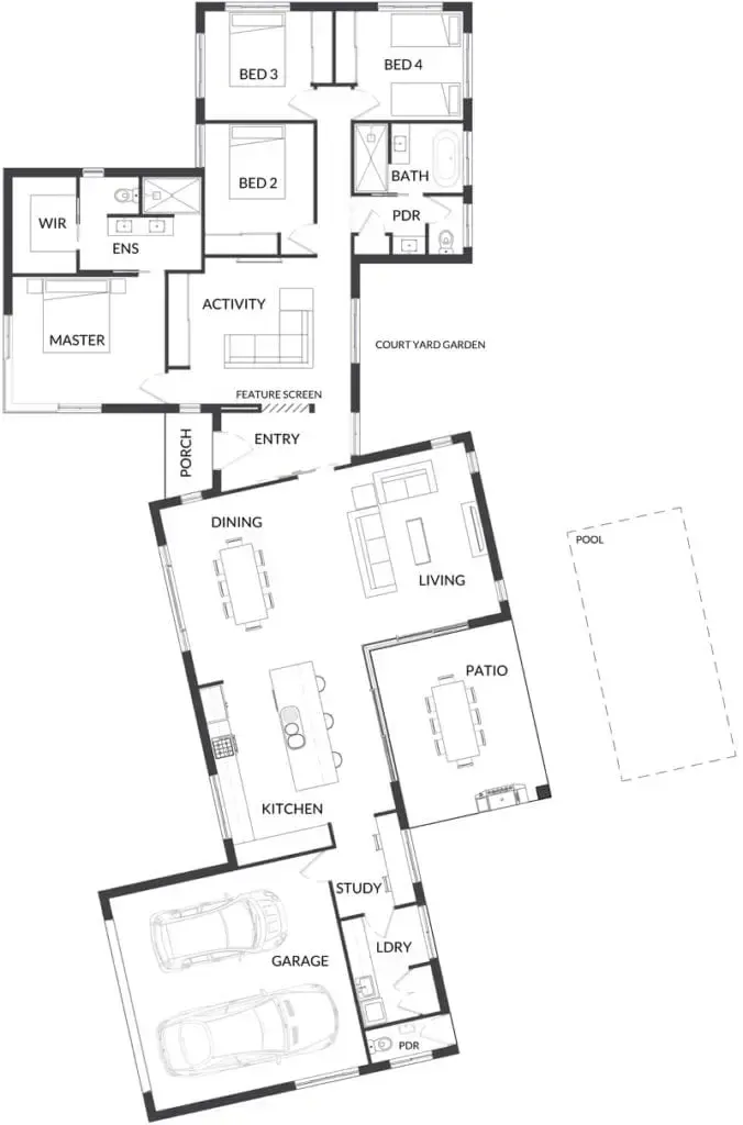
The Moonbi BSI2
The Moonbi BSI2 enhances the design with an extra bedroom, making it a versatile four-bedroom home that balances shared and private spaces. With an open-plan layout, generous storage, and a master retreat with an ensuite and walk-in robe, this design is perfect for growing families who need a little more room.

The Moonbi BSI2
Total Area
Width
Length
Clever Use of Space
Seamless Living & Entertaining
Designed for Your Lifestyle
Did you know?
Single Builders can custom design The Moonbi BSI2 as well as all our plans to suit your needs?
Get a FREE Quote for The Moonbi BSI2
Contact Us
We will get back to you as soon as possible.
Please try again later.
The Moonbi BSI3
Offering the largest layout in the series, The Moonbi BSI3 is a spacious five-bedroom home designed for modern family living. Featuring a well-zoned floor plan with multiple living areas, an entertainer’s kitchen, and a private master suite, this home delivers exceptional functionality and style for larger households.

The Moonbi BSI3
Total Area
Width
Length
Clever Use of Space
Seamless Living & Entertaining
Designed for Your Lifestyle
Did you know?
Single Builders can custom design The Moonbi BSI3 as well as all our plans to suit your needs?
Get a FREE Quote for The Moonbi BSI3
Contact Us
We will get back to you as soon as possible.
Please try again later.




















